MENUCLOSE

Works

建築実例

CONTEMPORARY/海外を彷彿とする3階建て

大阪市 M様

邸宅

2階リビング

ホテルライク

トレンド

グレーの家

家事ラク間取り

素材

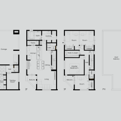
2台のインナーガレージにトレーニングルーム、
屋上ガーデンのある住まい。

マンションから一戸建てに住み替えられたM様。

3人目のお子様の誕生を機に、子育て環境を考えての選択でした。
息子さんは3人とも育ち盛りのサッカー少年。

スパイクやボールの泥汚れも、玄関先でさっと落として室内へ。
2台分のインナーガレージで、大きな荷物がある日も
雨の日も、スムーズ出し入れできます。

まるで郊外暮らしのようですが、
実は大阪市内、駅徒歩5分の好立地。

人工芝の屋上ガーデンを備えたお住まいは
都市部にあることを忘れそうな開放感で、
インテリアは大人のモノトーン。

生活感を排しながら、使い勝手を犠牲にしない
ホテルライクなお住まいが完成しました。

Information

実例の詳細情報

竣工 2022年7月
所在地 大阪市
家族構成 夫婦+子3
STAFF 山本・松本
価格帯 4000万円~
構造 木3
敷地面積 78.65㎡
延床面積 131.94㎡
STAFF 山本・松本
【都会×郊外】ほしいもの、すべて叶いました

Owners Interview

お客様の声

【都会×郊外】ほしいもの、すべて叶いました

【都会×郊外】ほしいもの、すべて叶いました

このページのトップへ

X